Update, 16 decembrie 2025, ora 14:50
Exclusiv | Comisia de circulație a municipalității Pitești se reunește în ședință miercuri, 17 decembrie 2025.
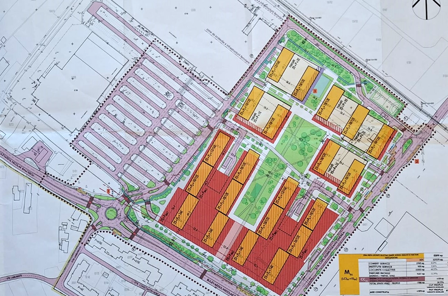
Pe ordinea de zi se află și soluționarea unui cereri a firmei bucureștene care va construi un cartier de blocuri cu 14 etaje și circa 2.400 de unități locative în zona Rolast (Auchan Găvana).
”În adresa nr. 59767/26.11.2025, Bold International SRL solicită avizul comisiei de circulație pentru documentația de elaborare a unui Plan Urbanistic Zonal cu privire la racordarea la rețeaua de căi de comunicație a proiectului ”Cartier de locuințe colective, comerț, servicii, educație, funcțiuni complementare” amplasat în municipiul Pitești, strada Constantin Dobrogeanu Gherea, nr. 1, cerință prevăzută în certificatul de urbanism nr. 607/14.07.2025.
În documentație, pentru accesul la terenul pe care vor fi edificate clădiri cu regim înalt, care cumulează aproximativ 2.400 de apartamente/garsoniere, sunt prevăzute accese auto atât dinspre bulevardul Nicolae Bălcescu, cât și din strada Constantin Dobrogeanu Gherea. Accesul dinspre bulevard se va face printr-o intersecție prevăzută cu sens giratoriu amplasat la intersecția cu strada Balotești și accesul către parcarea complexului comercial Auchan. Dinspre strada Constantin Dobrogeanu Gherea sunt prevăzute două accese principale către interiorul zonei construite, precum și alte două rampe de acces la parcajele subterane”.
Update, 10 decembrie 2025, ora 11:05
Exclusiv | Proiectul a primit aviz favorabil de oportunitate pentru elaborarea PUZ-ului din partea Comisiei Tehnice de Amenajare a Teritoriului și Urbanism a municipalității Pitești. 7 dintre membrii comisiei au votat ”pentru”. A fost o singură abținere, iar voturi ”împotrivă” nu au existat.
Știrea inițială, 28 noiembrie 2025, ora 11:12
Exclusiv | Un nou cartier de locuințe ar urma să fie construit în zona de nord a Piteștiului, pe strada Constantin Dobrogeanu Gherea, nr. 1. Va fi un cartier de blocuri, cu câte 14 etaje. Proiectul este al firmei bucureștene Bold International SRL.
Comisia Tehnică de Amenajare a Teritoriului și Urbanism a municipalității Pitești a primit o cerere din partea investitorului respectiv pentru emiterea avizului de oportunitate în vederea elaborării PUZ-ului pentru ”Cartier locuințe colective, comerț, servicii, educație și funcțiuni complementare” pe terenuri în suprafață totală de 83.890 de mp, în zona Rolast.
”Se propune reglementarea unei zone mixte (…), cu funcțiunea dominantă de locuire colectivă (aproximativ 2.400 de unități locative) (…), cu regim maxim de înălțime de 55 de metri (2 subsoluri+demisol+parter+mezanin/parter înalt + 14 etaje).
În cadrul zonei mixte se propune admiterea următoarelor funcțiuni: locuire colectivă, activități administrative, administrarea afacerilor, financiar-bancare, comerciale, culturale, de învățământ și de sănătate cu caracter ambulatoriu.
Spațiile de locuit vor putea fi amplasate doar la etajele imobilelor adiacente celor două căi de circulație, cât și celor amplasate pe latura din vecinatatea centrului comercial existent (n.r. – hipermarketul Auchan Găvana).
La nivelul parterului (după caz, a mezaninului) vor fi amplasate exclusiv funcțiuni de interes public deschise către spații publice.
(…) Se propun spații verzi organizate pe sol natural care vor ocupa minimum 20% din suprafața terenului.
Peste spațiile aferente parcajelor supraetajate aflate în afara amprentei blocurilor de locuințe vor fi amenajate spații comune de odihnă sau activităti în aer liber accesibile locuitorilor blocurilor adiacente și vor fi amenajate ca terase circulabile/terase verzi în sistem intensiv (inclusiv arbuști de talie mică)”, se arată în documentația care va fi supusă aprobării prin vot în ședința din 2 decembrie 2025 a Comisiei Tehnice de Amenajare a Teritoriului și Urbanism a municipalității piteștene.
”Toate spațiile adiacente noilor căi de circulatie auto sau celor exclusiv pietonale, scuarurilor, zonelor verzi amenajate și locurilor de joacă vor avea caracter public.
Sunt propuse accesuri principale auto și pietonale atât din strada C. Dobrogeanu Gherea, cât și din bulevardul Nicolae Bălcescu și prin crearea unei noi rețele stradale secundare în cadrul teritoriului reglementat.
Este propusă realizarea unei intersecții cu girație (sens giratoriu), care să deservească comunicarea rutieră fluentă cu centrul comercial și cartierul propus, precum și accesul către strada Lăbușești (apoi, strada Balotești), eliminând relația actuală conflictuală de stânga pe bulevardul Nicolae Bălcescu.
De asemenea, este propusă regularizarea/modernizarea străzii Constantin Dobrogeanu Gherea și realizarea unei amenajari pentru un terminal de transport în comun – cap de linie Alprom.
Lucrările de infrastructură edilitară și de căi de comunicație (străzi, terminal autobuz, piste pentru biciclete) vor fi exclusiv realizate pe cheltuiala investitorului, urmând, după caz, să fie cedate către domeniul public la finalizarea lucrărilor”, se mai precizează în documentație.
Numărul de blocuri propus nu este specificat. (Foto: doar cu caracter ilustrativ. Sursă foto: randari-arhitectura.ro)
Ne puteți citi și pe pagina noastră de Facebook și în grupul de socializare Pitesti24.ro. De asemenea, vă puteți abona la canalul nostru de YouTube.




